Θα παρέχει δωρεάν φαρμακευτικό και υγειονομικό υλικό σε ευάλωτες κοινωνικές ομάδες
Ο Δήμος Χανίων προχωράει στη δημιουργία του Κοινωνικού Φαρμακείου, μιας νέας, σύγχρονης κοινωνικής που θα παρέχει δωρεάν φαρμακευτικό και υγειονομικό υλικό σε ευάλωτες κοινωνικές ομάδες, με στόχο την ενίσχυση του δικτύου κοινωνικής αλληλεγγύης και την παροχή ουσιαστικής στήριξης σε συμπολίτες μας που το έχουν ανάγκη.
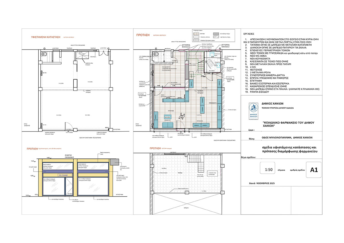
Οι εργασίες έχουν ήδη ξεκινήσει για το Κοινωνικό Φαρμακείο του Δήμου Χανίων που θα βρίσκεται στην οδό Μυλωνογιάννη 92, λίγα μέτρα μόνο μακριά από το Δημαρχείο Χανίων, την Κοινωνική Υπηρεσία, το Κοινωνικό Παντοπωλείο και το Κοινωνικό Πλυντήριο/Κομμωτήριο του Δήμου Χανίων. Η τοποθεσία της νέας κοινωνικής δομής έχει ως στόχο την εύκολη πρόσβαση των ευάλωτων κοινωνικών ομάδων τόσο στις κοινωνικές υπηρεσίες όσο και στη δωρεάν φαρμακευτική περίθαλψη.

Σύμφωνα με τον σχεδιασμό της δημοτικής αρχής το Κοινωνικό Φαρμακείο του Δήμου Χανίων θα ξεκινήσει την λειτουργία του εντός του 2026. Ήδη έχουν ολοκληρωθεί οι εργασίες αποξήλωσης του παλιού εξοπλισμού, ενώ το επόμενο στάδιο περιλαμβάνει τη διαμόρφωση ενός πλήρως λειτουργικού χώρου, με χώρο υποδοχής κοινού, αποθηκευτικούς χώρους και σύγχρονες υποδομές υγιεινής, ώστε να διασφαλίζεται η ποιότητα και η ασφάλεια των παρεχόμενων υπηρεσιών.
Όπως επεσήμανε ο Δήμαρχος Χανίων, Παναγιώτης Σημανδηράκης: «Η δημιουργία του Κοινωνικού Φαρμακείου αποτελεί ένα ακόμη σημαντικό βήμα στη στρατηγική του Δήμου Χανίων, για μια πόλη που δεν «αφήνει» κανέναν πίσω. Με στοχευμένες δράσεις και νέες σύγχρονες δομές, ενισχύουμε καθημερινά το δίχτυ προστασίας για τους συμπολίτες μας που βρίσκονται σε ανάγκη. Το Κοινωνικό Φαρμακείο του Δήμου Χανίων, δίπλα σε άλλες κοινωνικές υπηρεσίες του Δήμου, εξασφαλίζει άμεση πρόσβαση και ολοκληρωμένη υποστήριξη συμβάλλοντας ουσιαστικά στη βελτίωση των προσφερόμενων υπηρεσιών σε ευάλωτες ομάδες».

Δημοφιλή
Δραματικές εξελίξεις με την εξαφάνιση του Μπεν: Άνδρας λέει πως είναι το χαμένο παιδί από την Κω
Την πήρε ο Κύριος και ελευθερώθηκε, την ευχαριστώ που ήταν κομμάτι της ζωής μου, λέει η κουμπάρα της Γωγώς Μαστροκώστα
Θλίψη στην Ιεράπετρα: Νεκρός στο σπίτι του ο γνωστός μαραθωνοδρόμος Κώστας Μπαρμπουνάκης
Βάνα Μπάρμπα για Γωγώ Μαστροκώστα: «Η μόνη γυναίκα που με έκανε να τη ζηλέψω»
Γιατί χιλιάδες Τούρκοι μπαίνουν μαζικά στην Ελλάδα τις τελευταίες μέρες
Το παιδί μας ήρθε το Σάββατο για να παραλάβει το δίπλωμα οδήγησης και τη Δευτέρα σκοτώθηκε» λέει ο θείος του 18χρονου που σκοτώθηκε στο τροχαίο στην Λέσβο
ΟΠΕΚΕΠΕ: «Πάνω από 400 εμπλεκόμενοι στην Κρήτη - Ούτε που φαντάζεστε το μέγεθος της απάτης»
Έντονη αδιαθεσία πολίτη στην ομιλία Τσίπρα: «Αν υπάρχει γιατρός να έρθει γρήγορα» (βίντεο)
Πένθος στην Κρήτη: Εκοιμήθη ο πρωτοπρεσβύτερος Κωνσταντίνος Περβολαράκης σε ηλικία 60 ετών